Чтобы пережидать воздушные тревоги: в Киеве КП хочет закупить стеклянные остановки на миллионы гривен

Читати українською
Автор
595
Иллюстрация Новость обновлена 05 января 2024, 06:06
Иллюстрация. Фото Открытые источники

Очень "практичное" решение во время военного положения

Киевское коммунальное предприятие "Киевпасстранс" провело тендер на закупку 30 "современных павильонов ожидания", которые должны будут появиться в разных районах столицы до конца 2024 года. Данные конструкции будут выполнены из металлического каркаса и стеклянных панелей.

На таких "безопасных" остановках гости и жителя город должны будут ожидать окончания сирены воздушной тревоги. Об этом сообщается на сайте Prozorro.

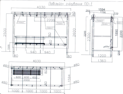
Так, "повильоны ожидания" будут представлять собой остановки с металлическим каркасом и стеклянными крышей и стенами. Внутри будут размещаться деревянные лавочки с лаковым покрытием. Пол будет устлан керамической или же гранитной тротуарной плиткой. Также рассматривается вариант монолитной бетонной плиты изготовленной в заводских условиях.

Стоит отметить, что в КП хотят приобрести 25 остановок длиной в четыре метра и еще пять комплексов длиной в шесть метров.

Чертеж павильона

Стоимость 30 таких "современных павильонов ожидания" оценили в 8 396 428 гривен, однако договор с компанией "Монтажбуд-77", которая выиграла тендер на поставку комплексов, еще не подписали.

Стоит отметить, что это единственная компания которая подалась на торги и это ее первый тендер.

Чертеж павильона

Напомним, что столичные власти приняли решение, что с 22 мая 2023 года наземный общественный транспорт столицы в случае объявления воздушной тревоги должен довозить пассажиров до ближайшего укрытия.

Водитель транспорта будет объявлять о ближайшем укрытии. Речь может идти о подземных станциях метро, подземных переходах, укрытиях в домах и прочее. Выполнение этого решения будет контролировать патрульная полиция города.

Ранее "Телеграф" сообщал о том, что в Киеве воздушные тревоги и вызванные ими остановка наземного транспорта с отменой движения поездов метро на Левый берег Днепра наносят ущерб коммунальным транспортным предприятиям. Впрочем, точную сумму экономического ущерба рассчитать невозможно. Об этом по информационному запросу "Телеграфу" сообщили в департаменте транспортной инфраструктуры Киевской городской государственной администрации.